Смоленская 3А
1-комнатная квартира
Сдача
4 кв. 2025
Этаж
1/17
Площадь
38
Жилая
15.9
Кухня
11.6
Цена
4 368 100 руб.
114 950 руб./м2
Ипотека*
24 035 руб./мес
Первый взнос: от 20.01%
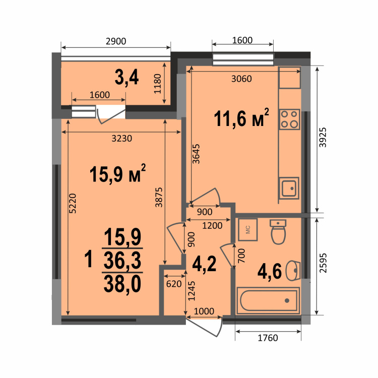
Однокомнатная квартира (38 кв.м) в 4 подъезде ЖК Смоленская 3А. Окна квартиры выходят на восток в сторону двора. В квартире большая жилая комната с выходом на лоджию, совмещенный санузел, функциональная прихожая и кухня площадью почти 12 кв.м.
ЖК Смоленская 3А - это 17-этажный монолитный дом, строящийся в рамках смарт-квартала VERIZINO life:
- современный стильный фасад
- дизайнерская отделка подъездов
- сквозные подъезды с выходом как во двор, так и на внешнюю сторону дома
- в квартирах выполнена черновая отделка
- двор без машин и уютными пешеходными, игровыми и спортивными зонами
- большое спортивное поле с резиновым покрытием для разных видов спорта
- 2 лифта в каждом подъезде
- разнообразие планировочных решений
- новый детский сад в 400 метрах от дома
- рядом заканчивается строительство новой школы
- магазины, салоны, детские центры, пункты выдачи интернет-магазинов, остановки
Срок сдачи дома: 4 кв.2025 г.
Квартиру можно приобрести несколькими способами:
- Ипотека
- Рассрочка
- Обмен старой квартиры на новую по программе Трейд Ин
- Материнский капитал, жилищные сертификаты
Квартира сдается с качественной черновой отделкой: штукатурка стен, выравнивающая стяжка пола, установка пластиковых окон с подоконниками и откосами, установка входной двери, без электрической разводки.
ООО Специализированный застройщик "СК Континент". Проектная декларация на сайте наш.дом.pф
Цена указана с учетом максимальной скидки. Подробный расчет по телефону или в офисе продаж застройщика.
*Расчет носит ознакомительный характер. Ежемесячный платеж указан по программе "Семейная ипотека" от АО "Банк ДОМ.РФ" по следующим параметрам: ставка 5,3%, первый взнос - 20%, срок кредита - 20 лет (учтено личное и имущественное страхование). Подробности уточняйте у консультантов ВГИФ
