ЖК Сталинградский бульвар 7
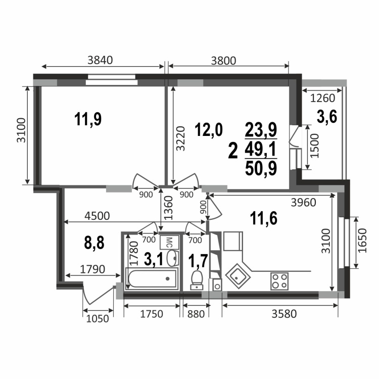
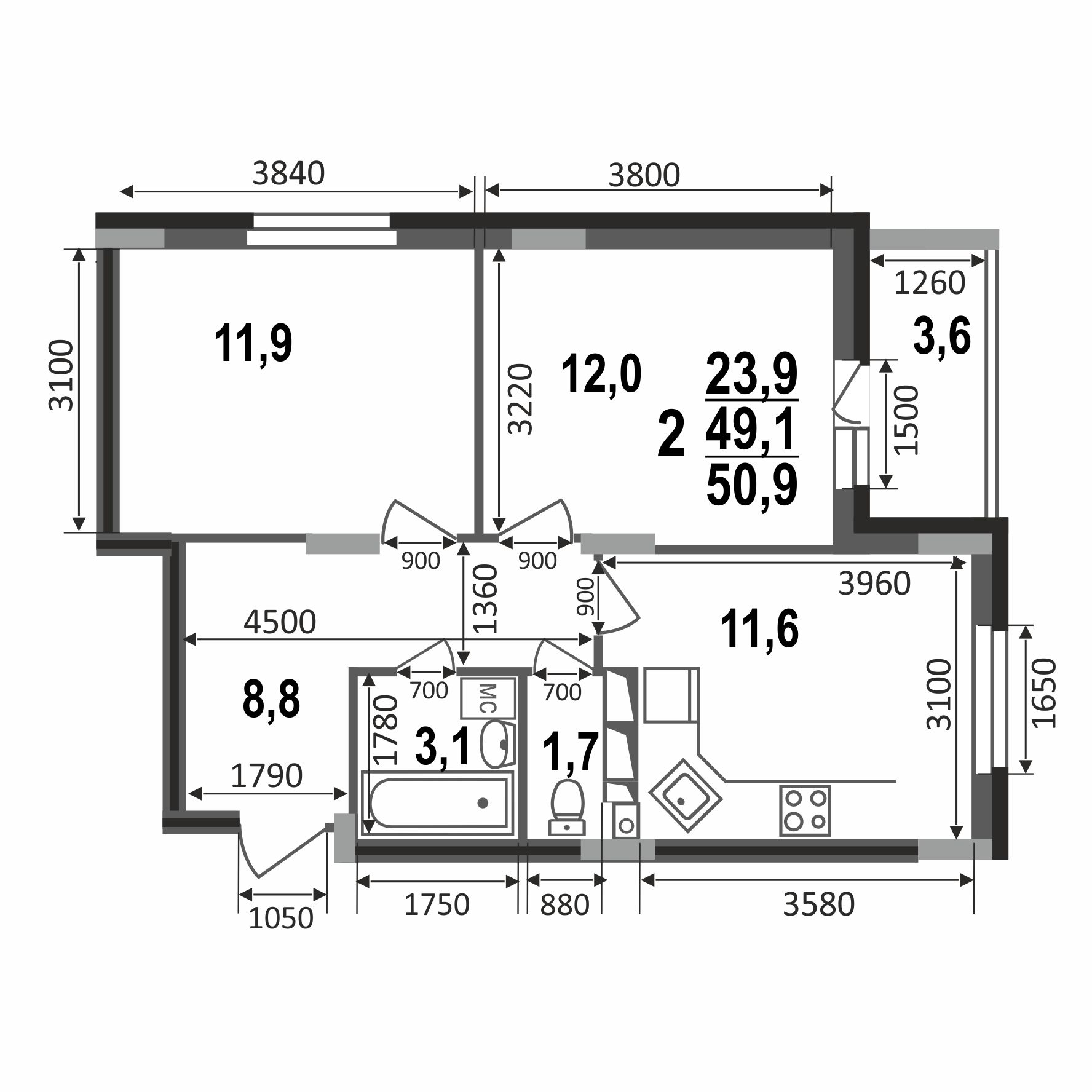
2-комнатная квартира
Сдача
4 кв. 2026
Этаж
13/17
Площадь
50.9
Жилая
23.9
Кухня
11.6
Цена
5 730 067 руб.
112 575 руб./м2
Ипотека*
31 529 руб./мес
Первый взнос: от 20.01%
Классическая двухкомнатная квартира 50,9 кв.м на две стороны. В квартире кухня 11,6 кв.м, раздельный санузел, удобная прихожая с нишей для шкафа-купе и 2 спальни по 12 кв.м, в одной из которых предусмотрен выход на лоджию.
Черновая отделка, гарантия на дом 5 лет.
Новый район, новый дом, новая инфраструктура, развитое транспортное сообщение.
ЖК Сталинградский бульвар 7 — это 17-этажный монолитный дом, строящийся в рамках смарт-квартала VERIZINO lifе:
современный стильный фасадостекленные лоджии во всех квартирахбольшие подъездные холлы на 1 этажесквозные подъезды с выходом как во двор, так и на внешнюю сторону домадизайнерская отделка подъездовдвор без машин с уютными пешеходными, игровыми и спортивными зонами2 лифта в каждом подъездебольшое разнообразие планировочных решенийновый детский садведется строительство новой школымагазины, салоны, детские центры, пункты выдачи интернет-магазинов, остановки
Квартиру можно приобрести несколькими способами:
рассрочка от застройщикаипотекаобмен старой квартиры на новую по программе трейд-инматеринский капитал, жилищные сертификаты
Срок сдачи дома: 4 кв.2026 г.
ООО Специализированный застройщик "СК Континент Сталинградский бульвар". Проектная декларация на сайте наш.дом.рф. Рассрочку предоставляет застройщик.
*Расчет носит ознакомительный характер. Ежемесячный платеж указан по программе "Семейная ипотека" от АО "Банк ДОМ.РФ" по следующим параметрам: ставка 5,3%, первый взнос - 20%, срок кредита - 20 лет (учтено личное и имущественное страхование). Подробности уточняйте у консультантов ВГИФ
