ЖК Сталинградский бульвар 7
2-комнатная квартира
Сдача
4 кв. 2026
Этаж
16/17
Площадь
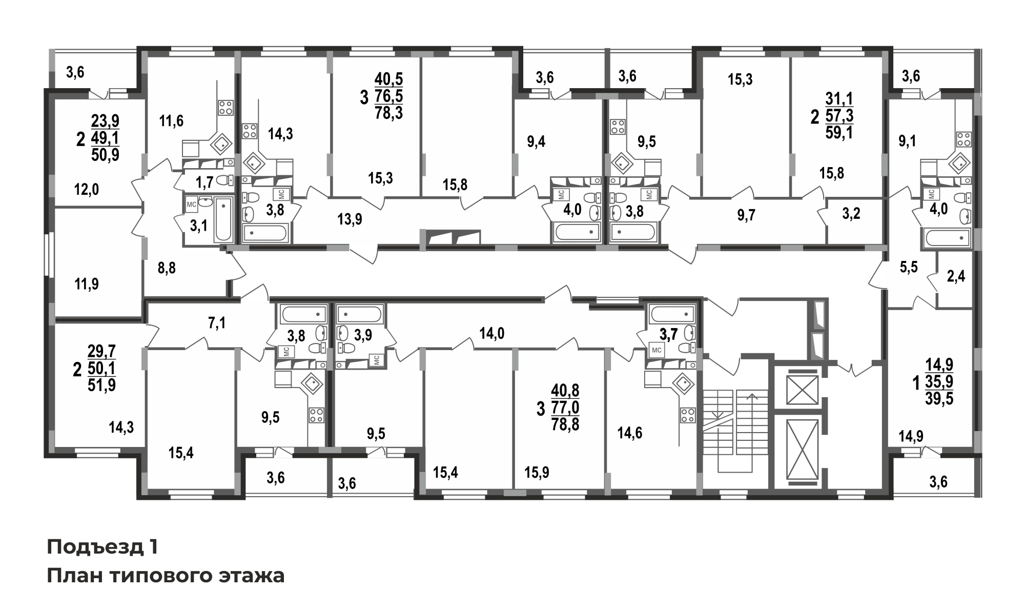
51.9
Жилая
29.7
Кухня
9.5
Цена
5 694 727 руб.
109 725 руб./м2
Ипотека*
31 335 руб./мес
Первый взнос: от 20.01%
Двухкомнатная квартира 51,9 кв.м в монолитном ЖК Сталинградский бульвар 7 в рамках смарт-квартала VERIZINO life.
Плюсы: квадратная кухня почти 9,5 кв.м с выходом на лоджию, просторные раздельные жилые комнаты 14/15 кв.м, совмещенный санузел, функциональная прихожая с местом под шкаф-купе
Черновая отделка, гарантия на дом 5 лет.
Новый район, новый дом, новая инфраструктура, развитое транспортное сообщение.
В ЖК Сталинградский бульвар 7 все подъезды являются “семейными секциями”. Весь дом ориентирован на проживание семей с детьми, более 80% квартир являются многокомнатными.
ЖК Сталинградский бульвар 7 — это 17-этажный монолитный дом, строящийся в рамках смарт-квартала VERIZINO lifе:
современный стильный фасадостекленные лоджии во всех квартирахбольшие подъездные холлы на 1 этажесквозные подъезды с выходом как во двор, так и на внешнюю сторону домадизайнерская отделка подъездовдвор без машин с уютными пешеходными, игровыми и спортивными зонами2 лифта в каждом подъездебольшое разнообразие планировочных решенийновый детский садведется строительство новой школымагазины, салоны, детские центры, пункты выдачи интернет-магазинов, остановки
Квартиру можно приобрести несколькими способами:
рассрочка от застройщикаипотекаобмен старой квартиры на новую по программе трейд-инматеринский капитал, жилищные сертификаты
Срок сдачи дома: 4 кв.2026 г.
ООО Специализированный застройщик "СК Континент Сталинградский бульвар". Проектная декларация на сайте наш.дом.рф. Рассрочку предоставляет застройщик.
*Расчет носит ознакомительный характер. Ежемесячный платеж указан по программе "Семейная ипотека" от АО "Банк ДОМ.РФ" по следующим параметрам: ставка 5,3%, первый взнос - 20%, срок кредита - 20 лет (учтено личное и имущественное страхование). Подробности уточняйте у консультантов ВГИФ
