жилой дом по ул. Батурина
Студия
Сдача
кв. 2025
Этаж
2/3
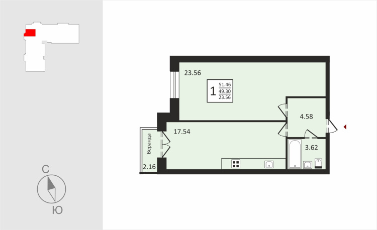
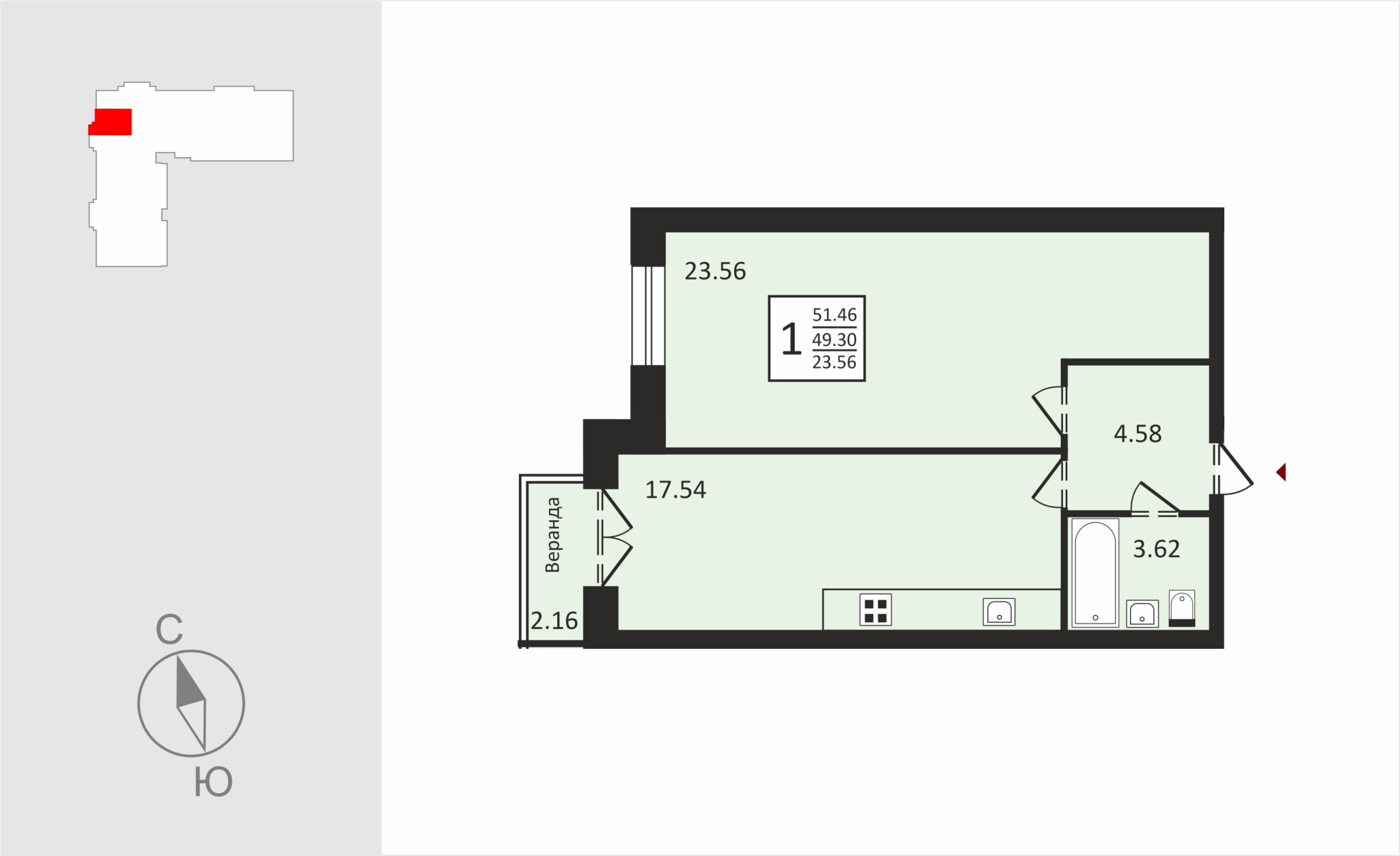
Площадь
51.46
Цена
6 844 180 руб.
133 000 руб./м2
Ипотека*
37 659 руб./мес
Первый взнос: от 20.01%
Код объекта: 1565611.
Современный кирпичный, 3-х этажный, многоквартирный жилой дом, всего 42 квартиры, 3 подъезда.
- наружные и внутренние стены из кирпича, с внешним утеплением сенерджи,
- остекление веранд в едином стиле,
- паркинг вокруг дома.
- детская площадка, зона отдыха взрослого населения
-развитая инфраструктура: в шаговой доступности центральный рынок,школы, детские сады, парк, магазины, остановка общественного транспорта.
Современный кирпичный, 3-х этажный, многоквартирный жилой дом, всего 42 квартиры, 3 подъезда.
- наружные и внутренние стены из кирпича, с внешним утеплением сенерджи,
- остекление веранд в едином стиле,
- паркинг вокруг дома.
- детская площадка, зона отдыха взрослого населения
-развитая инфраструктура: в шаговой доступности центральный рынок,школы, детские сады, парк, магазины, остановка общественного транспорта.
*Расчет носит ознакомительный характер. Ежемесячный платеж указан по программе "Семейная ипотека" от АО "Банк ДОМ.РФ" по следующим параметрам: ставка 5,3%, первый взнос - 20%, срок кредита - 20 лет (учтено личное и имущественное страхование). Подробности уточняйте у консультантов ВГИФ
