ЖК Сталинградский бульвар 7
2-комнатная квартира
Сдача
4 кв. 2026
Этаж
10/17
Площадь
56.5
Жилая
25.8
Кухня
9.1
Цена
6 199 462 руб.
109 725 руб./м2
Ипотека*
34 112 руб./мес
Первый взнос: от 20.01%
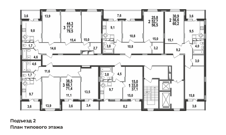
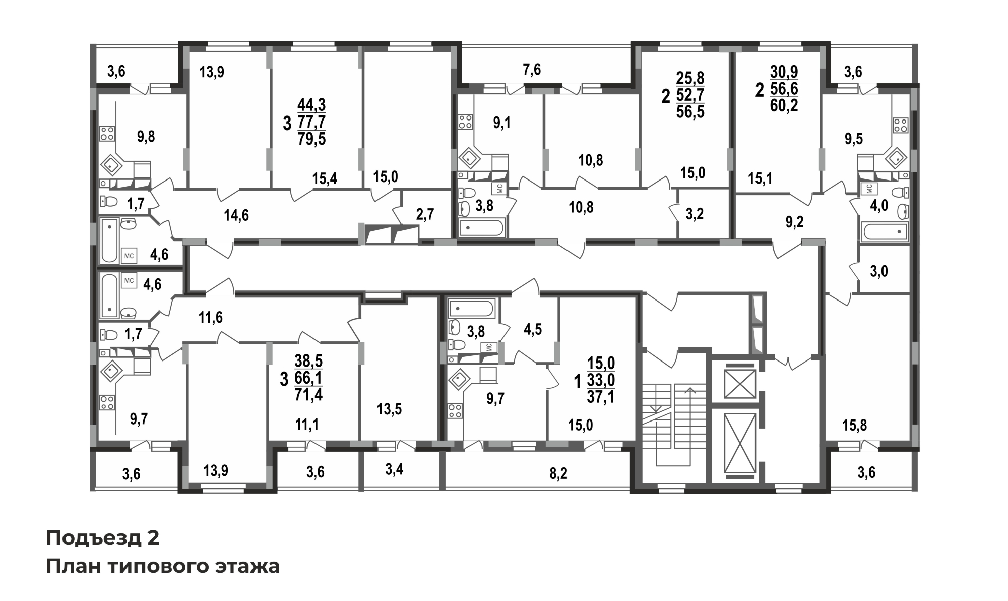
Комфорт и уют - двухкомнатная квартира 56,5 кв.м в VERIZINO life.
Предлагаем вашему вниманию светлую и просторную 2-комнатную квартиру площадью 56,5 кв.м, идеально подходящую для комфортного проживания.
Особенности квартиры:
— Окна на северо-запад, что позволяет наслаждаться мягким вечерним солнцем и прекрасными закатами.
— Гардеробная для удобного хранения ваших вещей.
— Совмещённый санузел, обеспечивающий максимальное удобство.
— Лоджия с выходами как из кухни, так и из комнаты, создающий дополнительное пространство для отдыха и общения.
Эта квартира идеально сочетает комфорт и практичность, делая её идеальным выбором для тех, кто ценит уют и качество жизни.
Черновая отделка, гарантия на дом 5 лет.
Новый район, новый дом, новая инфраструктура, развитое транспортное сообщение.
В ЖК Сталинградский бульвар 7 все подъезды являются “семейными секциями”. Весь дом ориентирован на проживание семей с детьми, более 80% квартир являются многокомнатными.
ЖК Сталинградский бульвар 7 — это 17-этажный монолитный дом, строящийся в рамках смарт-квартала VERIZINO lifе:
· современный стильный фасад
· остекленные лоджии во всех квартирах
· большие подъездные холлы на 1 этаже
· сквозные подъезды с выходом как во двор, так и на внешнюю сторону дома
· дизайнерская отделка подъездов
· двор без машин с уютными пешеходными, игровыми и спортивными зонами
· 2 лифта в каждом подъезде
· большое разнообразие планировочных решений
· новый детский сад
· ведется строительство новой школы
· магазины, салоны, детские центры, пункты выдачи интернет-магазинов, остановки
Квартиру можно приобрести несколькими способами:
· рассрочка от застройщика
· ипотека
· обмен старой квартиры на новую по программе трейд-ин
· материнский капитал, жилищные сертификаты
Срок сдачи дома: 4 кв.2026 г.
ООО Специализированный застройщик "СК Континент Сталинградский бульвар". Проектная декларация на сайте наш.дом.рф. Рассрочку предоставляет застройщик.
*Расчет носит ознакомительный характер. Ежемесячный платеж указан по программе "Семейная ипотека" от АО "Банк ДОМ.РФ" по следующим параметрам: ставка 5,3%, первый взнос - 20%, срок кредита - 20 лет (учтено личное и имущественное страхование). Подробности уточняйте у консультантов ВГИФ
