ЖК Сталинградский бульвар 7
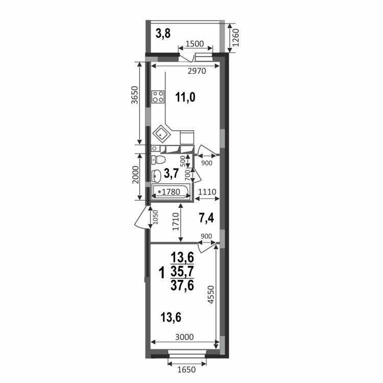
1-комнатная квартира
Сдача
4 кв. 2026
Этаж
9/17
Площадь
37.6
Жилая
13.6
Кухня
11
Цена
4 161 380 руб.
110 675 руб./м2
Ипотека*
22 898 руб./мес
Первый взнос: от 20.01%
1-комнатная РАСПАШОНКА! Площадь 37,6 кв.м.
Просторный санузел: 3,7 кв.м. В квартире кухня-гостиная 11 кв.м с выходом на лоджию 3,8 кв.м! Жилая комната правильной геометрии 13,6 кв.м, что позволит эффективно использовать каждый сантиметр пространства. Планировка на две стороны, что ценится в однокомнатных квартирах. Хорошая инвестиция. Функциональный коридор, что является огромным ПЛЮСОМ.
Прямая продажа от застройщика позволит купить квартиру с рассрочкой до ноября 2026 г.
Не упустите возможность приобрести квартиру вашей мечты в ЖК VERIZINO life! Звоните сейчас!
Черновая отделка, гарантия на дом 5 лет.
Новый район, новый дом, новая инфраструктура, развитое транспортное сообщение.
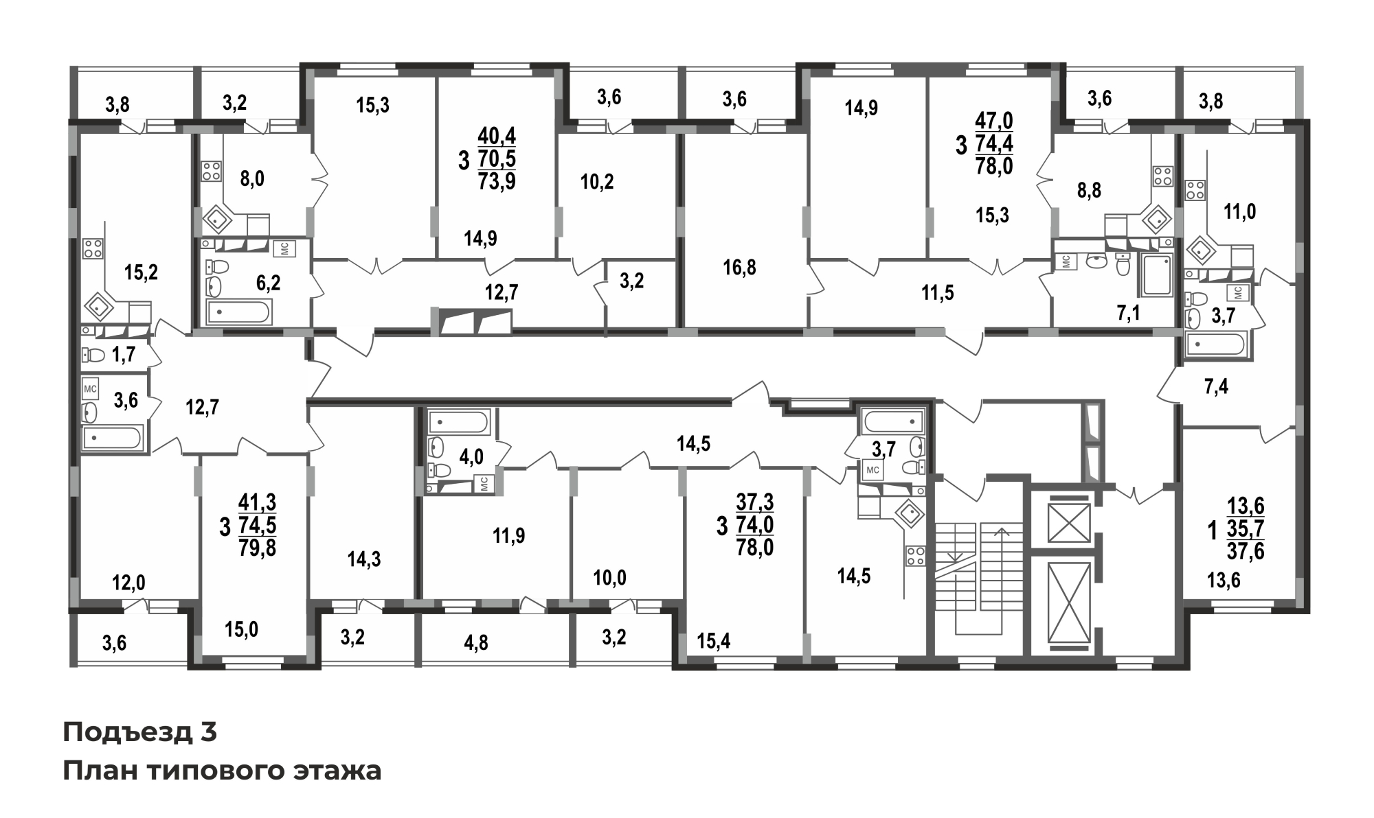
В ЖК Сталинградский бульвар 7 все подъезды являются “семейными секциями”. Весь дом ориентирован на проживание семей с детьми, более 80% квартир являются многокомнатными.
ЖК Сталинградский бульвар 7 — это 17-этажный монолитный дом, строящийся в рамках смарт-квартала VERIZINO lifе:
— современный стильный фасад
— остекленные лоджии во всех квартирах
— большие подъездные холлы на 1 этаже
— сквозные подъезды с выходом как во двор, так и на внешнюю сторону дома
— дизайнерская отделка подъездов
— двор без машин с уютными пешеходными, игровыми и спортивными зонами
— 2 лифта в каждом подъезде
— большое разнообразие планировочных решений
— новый детский сад
— ведется строительство новой школы
— магазины, салоны, детские центры, пункты выдачи интернет-магазинов, остановки
Квартиру можно приобрести несколькими способами:
— рассрочка от застройщика
— ипотека
— обмен старой квартиры на новую по программе трейд-ин
— материнский капитал, жилищные сертификаты
Срок сдачи дома: 4 кв.2026 г.
ООО Специализированный застройщик "СК Континент Сталинградский бульвар". Проектная декларация на сайте наш.дом.рф. Рассрочку предоставляет застройщик.
*Расчет носит ознакомительный характер. Ежемесячный платеж указан по программе "Семейная ипотека" от АО "Банк ДОМ.РФ" по следующим параметрам: ставка 5,3%, первый взнос - 20%, срок кредита - 20 лет (учтено личное и имущественное страхование). Подробности уточняйте у консультантов ВГИФ
